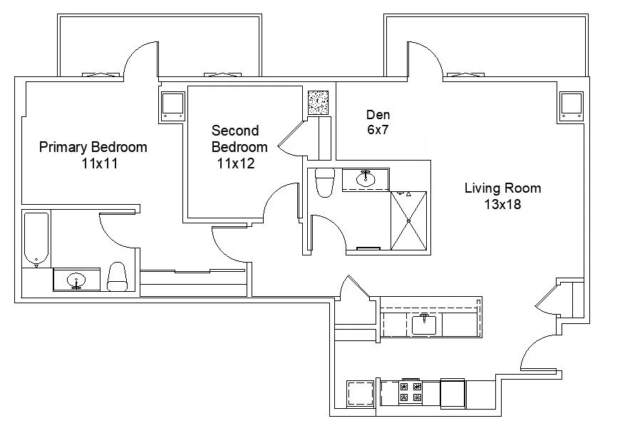
APARTMENT 908
This industrial-chic apartment features an updated eat-in kitchen with Bosch stainless steel appliances & a Bertazzoni range that's perfect for the at home chef. Wake up every morning to stunning downtown views. After a long day, step outside on either of your two private balconies to watch the city sparkle from the evening sunset.
1,265 SQ FT
–
EAST FACING
–
2 BEDROOM, 2 BATHROOM
2 PRIVATE BALCONIES
FLOOR PLAN
APARTMENT AMENITIES
LUXURY KITCHEN
Bertazzoni Range
Bosch Appliances
Quartz Coutertops
Garbage Disposal
MODERN BATHROOM
Shower with Tub
Walk-In Shower
Vanity with Great Storage
IN-UNIT WASHER/DRYER
2 PRIVATE BALCONIES
BREAKFAST BAR
DOWNTOWN VIEWS
COAT CLOSET

